Fil
Nybygget moderne villa med basseng og sjøutsikt i La Plana, Sitges
Sitges - REF. 1447

306 m2

5

5

1
salja: 2 600 000 €
Beskrivelse

Denne moderne villaen ligger i det nye boligområdet La Plana, kun få minutter fra sentrum og strendene i Sitges, og representerer en attraktiv mulighet for kjøpere som ønsker en ny bolig med høy kvalitet og mulighet for tilpasning.


Boligen er utformet med fokus på moderne arkitektur, god planløsning og rikelig med naturlig lys. Den er fordelt over flere nivåer som er forbundet med heis, noe som gir høy komfort.


Hovedetasjen består av en romslig stue og spisestue med store vindusflater som gir mye lys og direkte tilgang til terrasse, hage og bassengområde med sjøutsikt. Det åpne kjøkkenet har også direkte utgang til uteområdet og grillplass. Et gjestetoalett og oppbevaringsplass finnes også her.


Boligen har fem soverom, inkludert en hovedsuite med eget bad og garderobe. Flere rom kan brukes fleksibelt som kontor eller gjesterom.


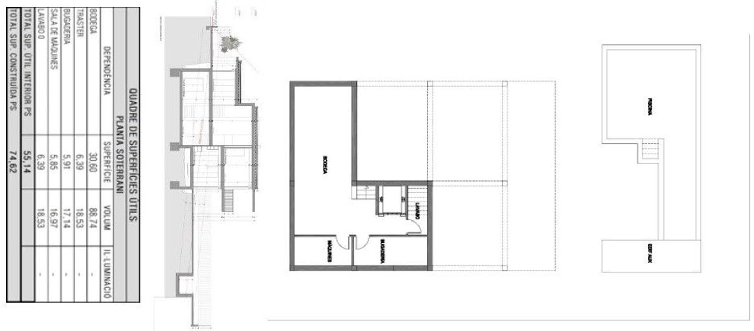
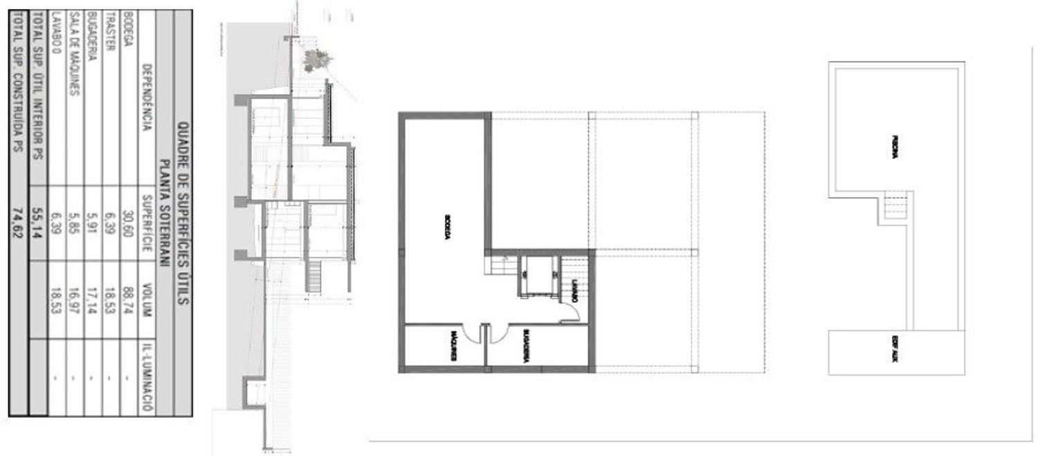
Kjelleren inneholder vinkjeller, vaskerom, teknisk rom og toalett.


Uteområdet har hage og basseng som gir gode muligheter for avslapning.


Eiendommen har aerotermisk system, komplette installasjoner og mulighet for tilpasning under bygging.

Egenskaper
Salgspris 2 600 000 €
Pris/m² 8 497
Bygget 306 m2
Brukbare 240 m2
Soverom 5
Bad 5
Terrasse
Felles svømmebasseng
Garasje
Energimerking Under behandling
Effektivitetsskalaer



Kontakt oss

Dersom du ønsker å motta mer informasjon om denne eiendommen vennligst fyll ut skjemaet:

 Ja, jeg har lest og/eller godtar vilkårene for bruk og personvernreglene
Liknende eiendommer:
 
2 420 000 €
Ref. 1529  331 m2  5  3
Hus til salgs i Castelldefels, med 331 m2, 5 rom og 3 Bad, Svømmebasseng, Bod og Aircondition.
 
2 600 000 €
Ref. 1482  598 m2  4  5
Hus til salgs i Benissa, med 598 m2, 4 rom og 5 Bad og Svømmebasseng.