Fil
Rymlig och ljus affärslokal med ventilationssystem i Cerdanyola
Cerdanyola del Vallès - REF. 1443

240 m2
hyra: 2 875 €/månad
Beskrivning

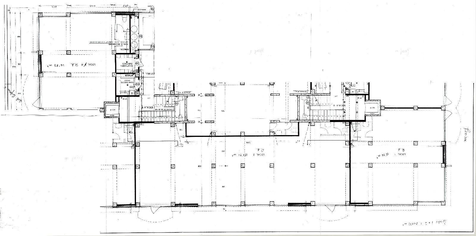
Affärslokal om 250 m² belägen i ett etablerat område i Cerdanyola med god aktivitet och tillgänglighet, vilket gör den lämplig både för egen verksamhet och som investering.


Lokalen är helt öppen i sin planlösning, vilket ger stor flexibilitet och gör det enkelt att anpassa den till olika typer av verksamheter såsom restaurang, butik, kontor eller tjänster.


En av de främsta fördelarna är det naturliga ljusinsläppet från sju stora glaspartier, som skapar en känsla av rymd och förbättrar den kommersiella synligheten avsevärt.


Lokalen är utrustad med ventilationssystem för rökutsläpp, vilket gör den särskilt lämpad för restaurangverksamhet. Den har även förberedda installationer för sanitära utrymmen, vilket förenklar anpassningen.


Möjligheten att skapa flera entréer ger ökad flexibilitet i användningen och öppnar upp för eventuell uppdelning av lokalen.


En mångsidig fastighet med starka förutsättningar och god utvecklingspotential.

Egenskaper
Prix för Unthyning 2 875 €/månad
Byggda 240 m2
Rökuttag
Energiklass I förfarande
Ljus
Vatten
Effektivitetsskalor



Din agent
Ferran Molins
Kontakta oss

Om ni vill ha mer information om detta fastighet, snälla fyll i rutan.

 Ja, jag har läst och/eller accepterar användarvillkoren och sekretesspolicyn
Galleri